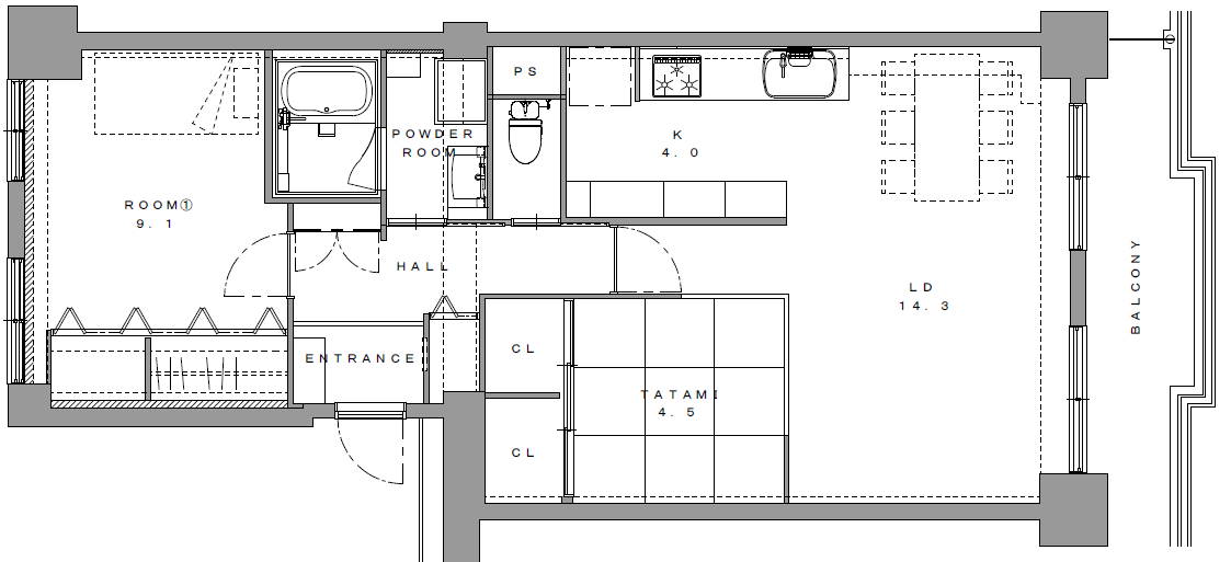
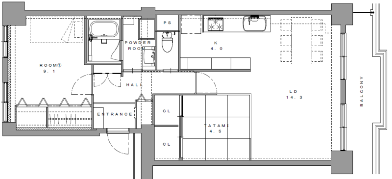
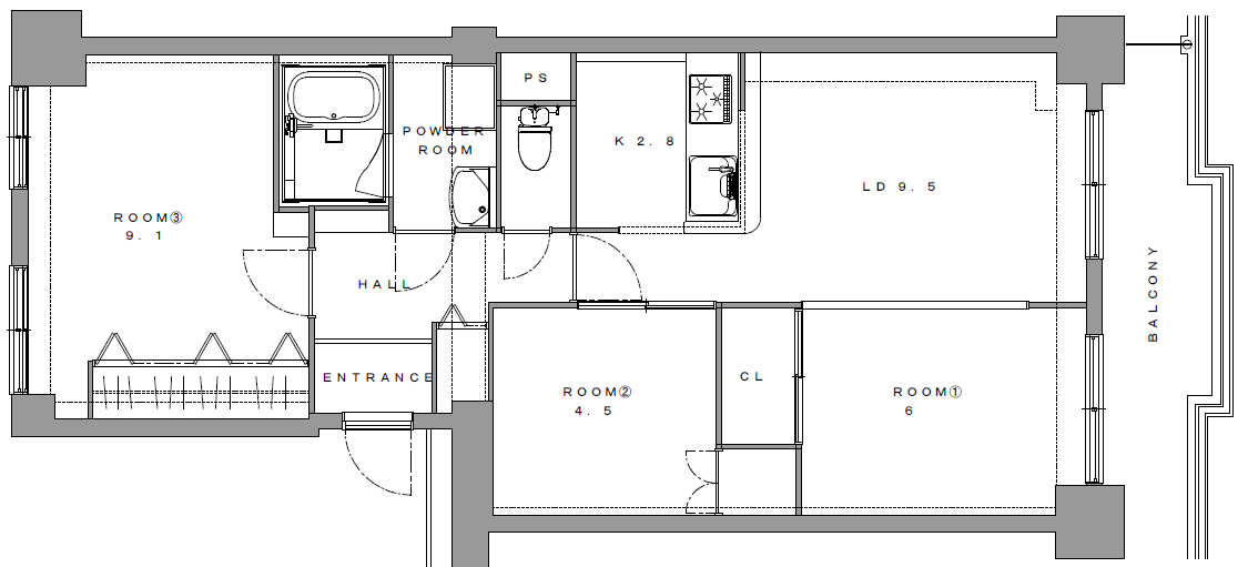
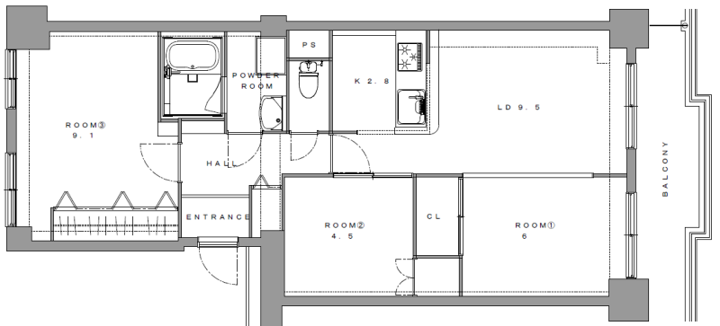
TOPリフォーム実例集【大阪市/マンションリフォーム】充実した収納と開放的空間が広がるライフステージリフォーム マンション 【大阪市/マンションリフォーム】充実した収納と開放的空間が広がるライフステージリフォーム 次前 ROOM PLANBEFOREAFTER DATA 所在地 大阪市 構造 RC造 築年数 36年 リフォーム面積 73㎡ 工期 2か月 リフォーム費用 700万円 リフォーム部位 フルリノベーション COMMENT大阪市/マンションリフォーム 近所に住んでいるお孫さんを預かることが多かったI様。 長女家族が遠方へ引越されたのを機に、お孫さんのお世話をすることがなくなり、ご夫婦二人これからのセカンドライフをゆったり快適に過ごせるようにとの希望でリフォームしました。 料理好きの奥様希望で対面式だった狭いキッチンを、向きを変えてLDとつなげることで使い勝手のいい広々スペースに。寝室兼用の和室は床をあげることで畳下にたっぷりの収納を確保。片づけるものがはっきりとわかっていたので、収納計画もスムーズに進めることができました。洋室は床の色を変えアクセントクロスで引締めLDKとは違った印象に仕上げました。 KEYWORDSキッチンナチュラルマンションふたり暮らし洗面シンプル500〜800万築25年以上〜築50年未満浴室800〜1000万70㎡以上〜100㎡未満トイレシニア廊下・階段LDK洋室収納和室玄関 その他のリフォーム実例集【豊中市/戸建てリフォーム】毎日をもっと心地よく、自分達らしい住まいを豊中市I様邸【大阪市/マンションリフォーム】個室もしっかり、LDKはのびやかに。角部屋を最大限に活かす住まい大阪市 Y様邸【大阪市/マンションリフォーム】「夫婦それぞれの暮らし方」60歳からの全面リフォーム大阪市 U様邸【大阪市/マンションリフォーム】暮らしやすさと心地よさを両立したジャパンディ空間T様邸 リフォーム実例集一覧へ戻る 無料お見積もりはこちら
マンション 【大阪市/マンションリフォーム】充実した収納と開放的空間が広がるライフステージリフォーム 次前 ROOM PLANBEFOREAFTER DATA 所在地 大阪市 構造 RC造 築年数 36年 リフォーム面積 73㎡ 工期 2か月 リフォーム費用 700万円 リフォーム部位 フルリノベーション COMMENT大阪市/マンションリフォーム 近所に住んでいるお孫さんを預かることが多かったI様。 長女家族が遠方へ引越されたのを機に、お孫さんのお世話をすることがなくなり、ご夫婦二人これからのセカンドライフをゆったり快適に過ごせるようにとの希望でリフォームしました。 料理好きの奥様希望で対面式だった狭いキッチンを、向きを変えてLDとつなげることで使い勝手のいい広々スペースに。寝室兼用の和室は床をあげることで畳下にたっぷりの収納を確保。片づけるものがはっきりとわかっていたので、収納計画もスムーズに進めることができました。洋室は床の色を変えアクセントクロスで引締めLDKとは違った印象に仕上げました。 KEYWORDSキッチンナチュラルマンションふたり暮らし洗面シンプル500〜800万築25年以上〜築50年未満浴室800〜1000万70㎡以上〜100㎡未満トイレシニア廊下・階段LDK洋室収納和室玄関 その他のリフォーム実例集【豊中市/戸建てリフォーム】毎日をもっと心地よく、自分達らしい住まいを豊中市I様邸【大阪市/マンションリフォーム】個室もしっかり、LDKはのびやかに。角部屋を最大限に活かす住まい大阪市 Y様邸【大阪市/マンションリフォーム】「夫婦それぞれの暮らし方」60歳からの全面リフォーム大阪市 U様邸【大阪市/マンションリフォーム】暮らしやすさと心地よさを両立したジャパンディ空間T様邸 リフォーム実例集一覧へ戻る