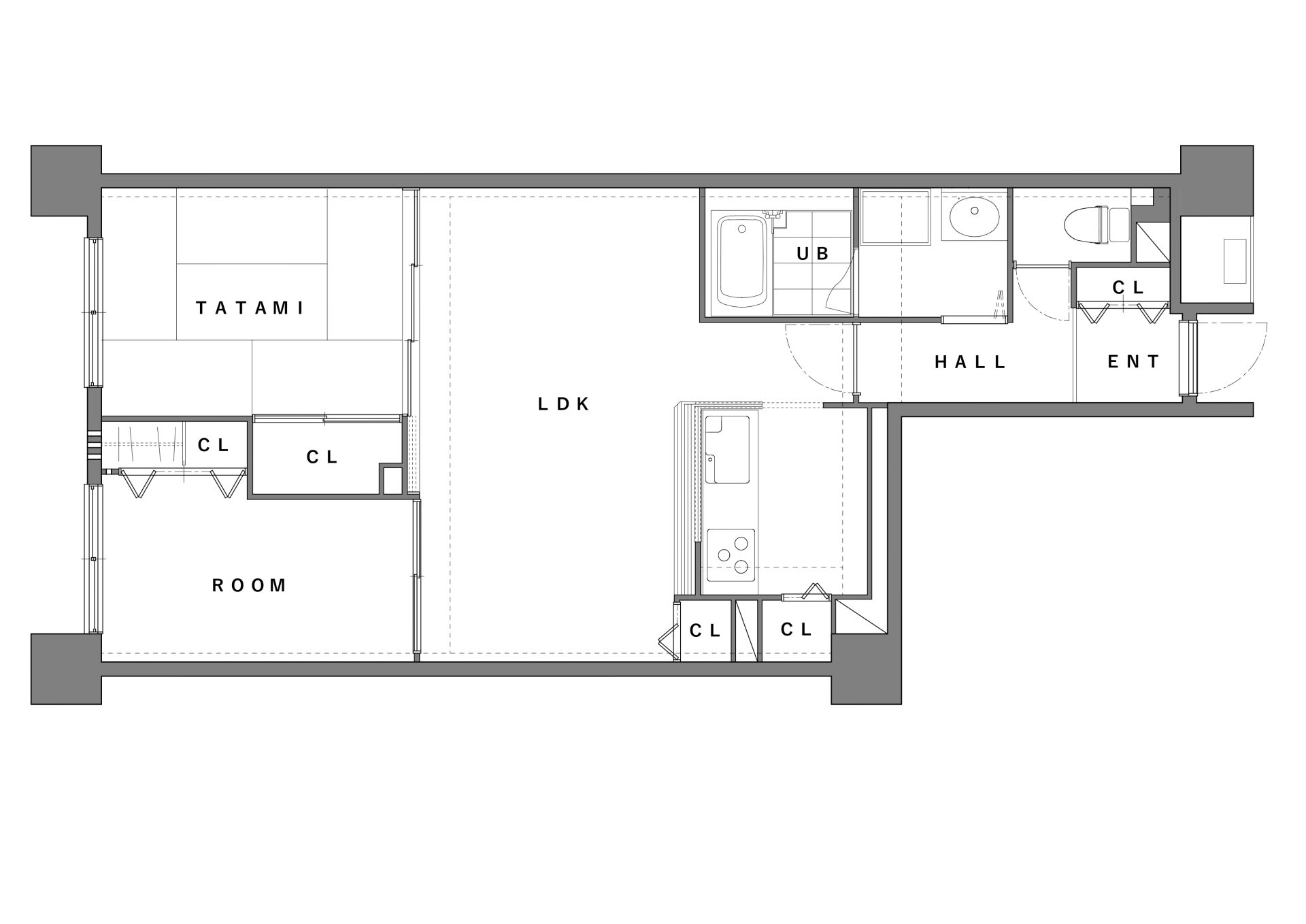
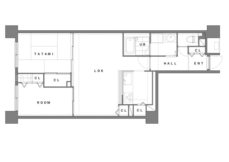
TOPリフォーム実例集【大阪市/マンションリフォーム】「夫婦それぞれの暮らし方」60歳からの全面リフォーム マンション 【大阪市/マンションリフォーム】「夫婦それぞれの暮らし方」60歳からの全面リフォーム 次前 ROOM PLANBEFOREAFTER DATA 所在地 大阪市 構造 SRC造 築年数 37年 リフォーム面積 60㎡ 工期 1.5ヵ月 リフォーム費用 600万円 リフォーム部位 全面 BEFORE COMMENT単身赴任をしていた奥様が大阪に拠点を戻すことになり、築37年を過ぎたご自宅をリフォームすることになったU様。古くなった設備等を一新する目的以外にも「夫婦がそれぞれの時間を大切にできる間取りにする」というテーマがありました。 こだわりは壁一面の造り付けの本棚と、光が抜けるように設計した腰壁です。編集者の奥様が手掛けた本を機能的に整理できるよう、本棚をリビングの壁一面に造り付けました。 LDKと洋室は腰壁で仕切り、上部を開けることによってLDKまで光が届くように。高さにこだわった腰壁のおかげで、ご主人様がテレビを見ていても仕事に集中することができます。 水まわりの設備と、床・クロスは全て新調。トイレと洗面室は柄物のクロスを取り入れ、明るいデザインに一新しました。本棚が暮らしの中に溶け込み、ご夫婦つかず離れずの暮らしができる最高の間取りのお家が完成しました。 お客様からの直筆メッセージ U様 工事期間中の仮住まいを無償で用意してもらえたのが助かりました。東京の住まいの引っ越しもあり、本当にバタバタで。みなさん手厚いサポートをしてくれたので、何の不便もなく、思った通りのリフォームができました。また、不具合や相談事があれば「ちょっと電話しよう」という気軽な関係性もできました。そこが青山リフォームのいい所だと思います。お客様の声を見る KEYWORDSナチュラルキッチン壁紙500〜800万50㎡以上〜70㎡未満ふたり暮らしシンプルマンション洗面築25年以上〜築50年未満浴室カジュアルトイレ廊下趣味オリジナル家具LDK洋室和室暮らしやすい・住みやすい収納癒し・くつろぎ玄関家事ラク内装機能的ワークスペース間取り変更 その他のリフォーム実例集【大阪市/マンションリフォーム】暮らしやすさと心地よさを両立したジャパンディ空間T様邸【八尾市/戸建てリフォーム】定年を迎えて向き合った「これからの住まい」T様邸【大阪府/マンションリフォーム】中古を買って、理想の我が家へリノベーションS様邸【大阪府/マンションリフォーム】愛犬と暮らす 家族みんなが快適に過ごせる家Y様邸 リフォーム実例集一覧へ戻る 無料お見積もりはこちら
マンション 【大阪市/マンションリフォーム】「夫婦それぞれの暮らし方」60歳からの全面リフォーム 次前 ROOM PLANBEFOREAFTER DATA 所在地 大阪市 構造 SRC造 築年数 37年 リフォーム面積 60㎡ 工期 1.5ヵ月 リフォーム費用 600万円 リフォーム部位 全面 BEFORE COMMENT単身赴任をしていた奥様が大阪に拠点を戻すことになり、築37年を過ぎたご自宅をリフォームすることになったU様。古くなった設備等を一新する目的以外にも「夫婦がそれぞれの時間を大切にできる間取りにする」というテーマがありました。 こだわりは壁一面の造り付けの本棚と、光が抜けるように設計した腰壁です。編集者の奥様が手掛けた本を機能的に整理できるよう、本棚をリビングの壁一面に造り付けました。 LDKと洋室は腰壁で仕切り、上部を開けることによってLDKまで光が届くように。高さにこだわった腰壁のおかげで、ご主人様がテレビを見ていても仕事に集中することができます。 水まわりの設備と、床・クロスは全て新調。トイレと洗面室は柄物のクロスを取り入れ、明るいデザインに一新しました。本棚が暮らしの中に溶け込み、ご夫婦つかず離れずの暮らしができる最高の間取りのお家が完成しました。 お客様からの直筆メッセージ U様 工事期間中の仮住まいを無償で用意してもらえたのが助かりました。東京の住まいの引っ越しもあり、本当にバタバタで。みなさん手厚いサポートをしてくれたので、何の不便もなく、思った通りのリフォームができました。また、不具合や相談事があれば「ちょっと電話しよう」という気軽な関係性もできました。そこが青山リフォームのいい所だと思います。お客様の声を見る KEYWORDSナチュラルキッチン壁紙500〜800万50㎡以上〜70㎡未満ふたり暮らしシンプルマンション洗面築25年以上〜築50年未満浴室カジュアルトイレ廊下趣味オリジナル家具LDK洋室和室暮らしやすい・住みやすい収納癒し・くつろぎ玄関家事ラク内装機能的ワークスペース間取り変更 その他のリフォーム実例集【大阪市/マンションリフォーム】暮らしやすさと心地よさを両立したジャパンディ空間T様邸【八尾市/戸建てリフォーム】定年を迎えて向き合った「これからの住まい」T様邸【大阪府/マンションリフォーム】中古を買って、理想の我が家へリノベーションS様邸【大阪府/マンションリフォーム】愛犬と暮らす 家族みんなが快適に過ごせる家Y様邸 リフォーム実例集一覧へ戻る