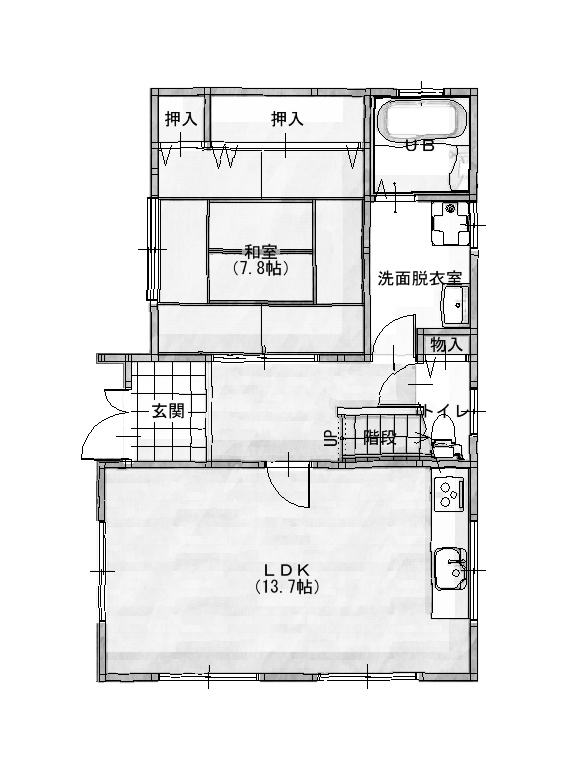
TOPリフォーム実例集【羽曳野市/戸建てリフォーム】ボタニカルなダイニングキッチンに大変身! 戸建て 【羽曳野市/戸建てリフォーム】ボタニカルなダイニングキッチンに大変身! 次前 ROOM PLAN1FBEFORE1FAFTER DATA 所在地 柏原市 構造 木造 築年数 - リフォーム面積 38.9㎡ 工期 1ヶ月 リフォーム費用 550万円 リフォーム部位 DK・リビング・玄関 BEFORE COMMENT羽曳野市/戸建てリフォーム 上手く使えていなかった和室をダイニングキッチンへ変更し、元々LDKだった空間をリビングとウォークインクローゼットにリフォームしました。ダイニングキッチンは天井と床の木目柄、そして壁にグリーンを基調としたアクセントクロスを合わせることで、ボタニカルな雰囲気に。広くなったリビングは白を基調とした空間に柄クロスが目を引く空間となりました。奥にはウォークインクローゼットも造り付け、収納量も確保しました。 KEYWORDS50㎡未満戸建てキッチンナチュラル500〜800万ファミリーカフェ風LDK収納玄関 その他のリフォーム実例集【豊中市/戸建てリフォーム】毎日をもっと心地よく、自分達らしい住まいを豊中市I様邸【大阪市/マンションリフォーム】個室もしっかり、LDKはのびやかに。角部屋を最大限に活かす住まい大阪市 Y様邸【大阪市/マンションリフォーム】「夫婦それぞれの暮らし方」60歳からの全面リフォーム大阪市 U様邸【大阪市/マンションリフォーム】暮らしやすさと心地よさを両立したジャパンディ空間T様邸 リフォーム実例集一覧へ戻る 無料お見積もりはこちら
戸建て 【羽曳野市/戸建てリフォーム】ボタニカルなダイニングキッチンに大変身! 次前 ROOM PLAN1FBEFORE1FAFTER DATA 所在地 柏原市 構造 木造 築年数 - リフォーム面積 38.9㎡ 工期 1ヶ月 リフォーム費用 550万円 リフォーム部位 DK・リビング・玄関 BEFORE COMMENT羽曳野市/戸建てリフォーム 上手く使えていなかった和室をダイニングキッチンへ変更し、元々LDKだった空間をリビングとウォークインクローゼットにリフォームしました。ダイニングキッチンは天井と床の木目柄、そして壁にグリーンを基調としたアクセントクロスを合わせることで、ボタニカルな雰囲気に。広くなったリビングは白を基調とした空間に柄クロスが目を引く空間となりました。奥にはウォークインクローゼットも造り付け、収納量も確保しました。 KEYWORDS50㎡未満戸建てキッチンナチュラル500〜800万ファミリーカフェ風LDK収納玄関 その他のリフォーム実例集【豊中市/戸建てリフォーム】毎日をもっと心地よく、自分達らしい住まいを豊中市I様邸【大阪市/マンションリフォーム】個室もしっかり、LDKはのびやかに。角部屋を最大限に活かす住まい大阪市 Y様邸【大阪市/マンションリフォーム】「夫婦それぞれの暮らし方」60歳からの全面リフォーム大阪市 U様邸【大阪市/マンションリフォーム】暮らしやすさと心地よさを両立したジャパンディ空間T様邸 リフォーム実例集一覧へ戻る