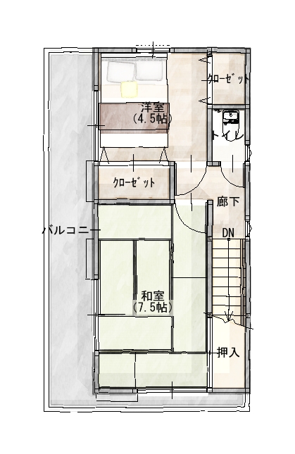
TOPリフォーム実例集【八尾市/戸建てリフォーム】これからの暮らしを楽しむ ふたりの為のわが家 戸建て 【八尾市/戸建てリフォーム】これからの暮らしを楽しむ ふたりの為のわが家 次前 ROOM PLAN1FBEFORE1FAFTER2FBEFORE2FAFTER DATA 所在地 八尾市 構造 木造 築年数 45年 リフォーム面積 67.5㎡ 工期 4ヶ月 リフォーム費用 1,331万 リフォーム部位 全面改装・耐震補強・断熱 BEFORE COMMENT八尾市/戸建てリフォーム ご主人様のご実家を受け継いだM様。築45年を過ぎ、老朽化もあったお住まいを、ご夫婦ふたり暮らしを快適にできるように全面改装をしました。 ガレージを新たに設けながらも、耐震補強と制振ダンパーを施すことで構造的にも安心安全なお住まいに。ガレージ上部には空間を有効利用し、ご主人様の趣味の物の収納スペースを確保しました。また今後を考え、階段は緩やかに架け替え、浴室は広さにこだわりました。さらにトイレは寝室のある2階にも設けることで、生活面も安心です。 お客様からの直筆メッセージ M様 お客様アンケートより 細かい所までお気遣い頂き、大変うれしく思います。ガレージ上部の収納や仏様の箇所までとても気に入っています。 また、知り合いにも紹介させて頂きたく思います。ありがとうございました。 STAFF担当スタッフ 田中 -tanaka- READ MORE 明石 -akashi- READ MORE KEYWORDSナチュラル趣味を楽しむ戸建てキッチンシンプル洗面50㎡以上〜70㎡未満ふたり暮らし築25年以上〜築50年未満1000〜1500万トイレ廊下・階段LDK収納洋室断熱和室耐震バリアフリー玄関外壁・屋根外構・エクステリア その他のリフォーム実例集【豊中市/戸建てリフォーム】毎日をもっと心地よく、自分達らしい住まいを豊中市I様邸【大阪市/マンションリフォーム】個室もしっかり、LDKはのびやかに。角部屋を最大限に活かす住まい大阪市 Y様邸【大阪市/マンションリフォーム】「夫婦それぞれの暮らし方」60歳からの全面リフォーム大阪市 U様邸【大阪市/マンションリフォーム】暮らしやすさと心地よさを両立したジャパンディ空間T様邸 リフォーム実例集一覧へ戻る 無料お見積もりはこちら
戸建て 【八尾市/戸建てリフォーム】これからの暮らしを楽しむ ふたりの為のわが家 次前 ROOM PLAN1FBEFORE1FAFTER2FBEFORE2FAFTER DATA 所在地 八尾市 構造 木造 築年数 45年 リフォーム面積 67.5㎡ 工期 4ヶ月 リフォーム費用 1,331万 リフォーム部位 全面改装・耐震補強・断熱 BEFORE COMMENT八尾市/戸建てリフォーム ご主人様のご実家を受け継いだM様。築45年を過ぎ、老朽化もあったお住まいを、ご夫婦ふたり暮らしを快適にできるように全面改装をしました。 ガレージを新たに設けながらも、耐震補強と制振ダンパーを施すことで構造的にも安心安全なお住まいに。ガレージ上部には空間を有効利用し、ご主人様の趣味の物の収納スペースを確保しました。また今後を考え、階段は緩やかに架け替え、浴室は広さにこだわりました。さらにトイレは寝室のある2階にも設けることで、生活面も安心です。 お客様からの直筆メッセージ M様 お客様アンケートより 細かい所までお気遣い頂き、大変うれしく思います。ガレージ上部の収納や仏様の箇所までとても気に入っています。 また、知り合いにも紹介させて頂きたく思います。ありがとうございました。 STAFF担当スタッフ 田中 -tanaka- READ MORE 明石 -akashi- READ MORE KEYWORDSナチュラル趣味を楽しむ戸建てキッチンシンプル洗面50㎡以上〜70㎡未満ふたり暮らし築25年以上〜築50年未満1000〜1500万トイレ廊下・階段LDK収納洋室断熱和室耐震バリアフリー玄関外壁・屋根外構・エクステリア その他のリフォーム実例集【豊中市/戸建てリフォーム】毎日をもっと心地よく、自分達らしい住まいを豊中市I様邸【大阪市/マンションリフォーム】個室もしっかり、LDKはのびやかに。角部屋を最大限に活かす住まい大阪市 Y様邸【大阪市/マンションリフォーム】「夫婦それぞれの暮らし方」60歳からの全面リフォーム大阪市 U様邸【大阪市/マンションリフォーム】暮らしやすさと心地よさを両立したジャパンディ空間T様邸 リフォーム実例集一覧へ戻る