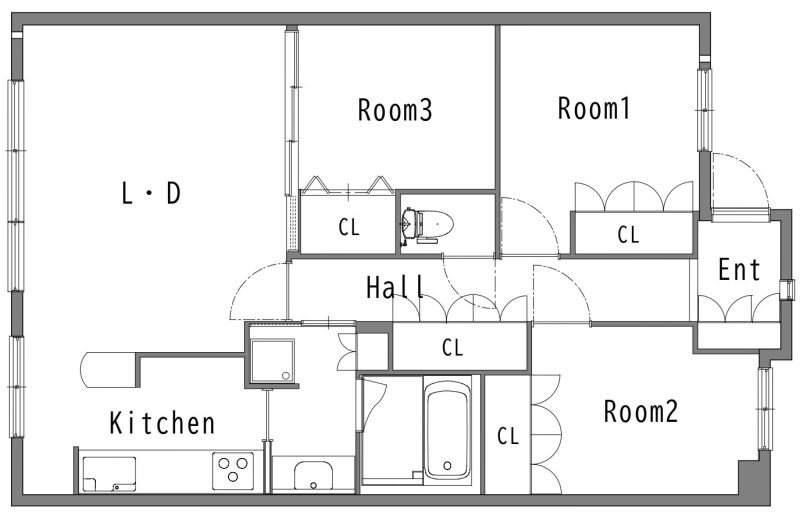
TOPリフォーム実例集【大阪府/マンションリフォーム】中古を買って、理想の我が家へリノベーション マンション 【大阪府/マンションリフォーム】中古を買って、理想の我が家へリノベーション 次前 ROOM PLANBEFOREAFTER DATA 所在地 大阪市 構造 RC造 築年数 23年 リフォーム面積 74.5㎡ 工期 2ヵ月 リフォーム費用 700万円 リフォーム部位 全面 BEFORE COMMENT大阪府/マンションリフォーム 3LDKで1坪サイズの大きなお風呂付のゆったりとした間取りに一目ぼれ!まだ小さなお子様との3人暮らしの中、中古マンションを購入したS様。インテリアもこだわりたいとSNSやインテリアショップを参考に理想のマイホームを実現しました。 リビングは流行のグレージュをベースとしたナチュラルシックなインテリアに。家具も全て新調して統一感を出しています。リビングの主役にはまるでタイルのような化粧パネルを採用。コストを抑えながら凸凹のリアルな質感を楽しめて一気に空間を華やかにしています。 こだわりのキッチンは収納力もたっぷりで作業効率もよく、ご夫婦お気に入りのスペースに。週末はご主人が本格的な料理を作って家族で楽しく食事をしています。リビング横の洋室は扉なしの半個室で開放感を。キッズスペースや書斎、お部屋の用途はその時々で変えられるので、使い勝手抜群のスペースに。 収納たっぷりの洗面所、おしゃれでシックなトイレ空間、広いお風呂、水まわりを充実させることで毎日の暮らしが上質で心豊かになり、忙しい子育て時間もゆとりをもって過ごすことができる、そんな素敵なリフォームとなりました。 KEYWORDS壁紙ナチュラル断熱カフェ風キッチンシンプル500〜800万ホテルライク築10年以上〜築25年未満マンション洗面タイル70㎡以上〜100㎡未満ファミリー浴室トイレモダン照明・間接照明廊下窓・室内窓・ドアラグジュアリーおもてなしLDK洋室北欧スタイルニッチ暮らしやすい・住みやすい収納癒し・くつろぎ子供部屋玄関家事ラク内装機能的ワークスペース子育て間取り変更 その他のリフォーム実例集【大阪市/マンションリフォーム】個室もしっかり、LDKはのびやかに。角部屋を最大限に活かす住まい大阪市 Y様邸【大阪市/マンションリフォーム】「夫婦それぞれの暮らし方」60歳からの全面リフォーム大阪市 U様邸【大阪市/マンションリフォーム】暮らしやすさと心地よさを両立したジャパンディ空間T様邸【八尾市/戸建てリフォーム】定年を迎えて向き合った「これからの住まい」T様邸 リフォーム実例集一覧へ戻る 無料お見積もりはこちら
マンション 【大阪府/マンションリフォーム】中古を買って、理想の我が家へリノベーション 次前 ROOM PLANBEFOREAFTER DATA 所在地 大阪市 構造 RC造 築年数 23年 リフォーム面積 74.5㎡ 工期 2ヵ月 リフォーム費用 700万円 リフォーム部位 全面 BEFORE COMMENT大阪府/マンションリフォーム 3LDKで1坪サイズの大きなお風呂付のゆったりとした間取りに一目ぼれ!まだ小さなお子様との3人暮らしの中、中古マンションを購入したS様。インテリアもこだわりたいとSNSやインテリアショップを参考に理想のマイホームを実現しました。 リビングは流行のグレージュをベースとしたナチュラルシックなインテリアに。家具も全て新調して統一感を出しています。リビングの主役にはまるでタイルのような化粧パネルを採用。コストを抑えながら凸凹のリアルな質感を楽しめて一気に空間を華やかにしています。 こだわりのキッチンは収納力もたっぷりで作業効率もよく、ご夫婦お気に入りのスペースに。週末はご主人が本格的な料理を作って家族で楽しく食事をしています。リビング横の洋室は扉なしの半個室で開放感を。キッズスペースや書斎、お部屋の用途はその時々で変えられるので、使い勝手抜群のスペースに。 収納たっぷりの洗面所、おしゃれでシックなトイレ空間、広いお風呂、水まわりを充実させることで毎日の暮らしが上質で心豊かになり、忙しい子育て時間もゆとりをもって過ごすことができる、そんな素敵なリフォームとなりました。 KEYWORDS壁紙ナチュラル断熱カフェ風キッチンシンプル500〜800万ホテルライク築10年以上〜築25年未満マンション洗面タイル70㎡以上〜100㎡未満ファミリー浴室トイレモダン照明・間接照明廊下窓・室内窓・ドアラグジュアリーおもてなしLDK洋室北欧スタイルニッチ暮らしやすい・住みやすい収納癒し・くつろぎ子供部屋玄関家事ラク内装機能的ワークスペース子育て間取り変更 その他のリフォーム実例集【大阪市/マンションリフォーム】個室もしっかり、LDKはのびやかに。角部屋を最大限に活かす住まい大阪市 Y様邸【大阪市/マンションリフォーム】「夫婦それぞれの暮らし方」60歳からの全面リフォーム大阪市 U様邸【大阪市/マンションリフォーム】暮らしやすさと心地よさを両立したジャパンディ空間T様邸【八尾市/戸建てリフォーム】定年を迎えて向き合った「これからの住まい」T様邸 リフォーム実例集一覧へ戻る