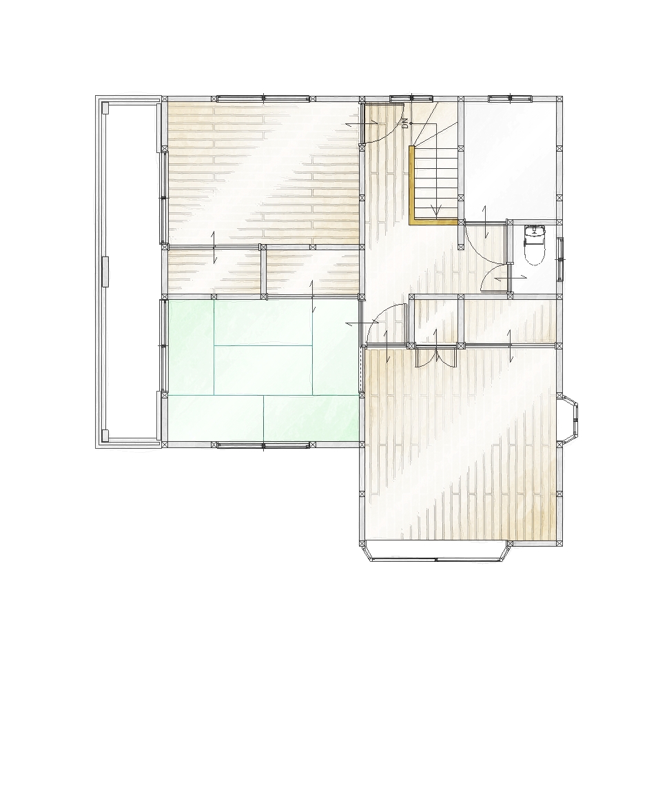
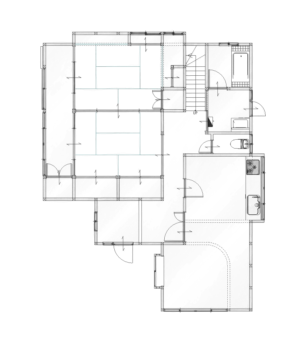
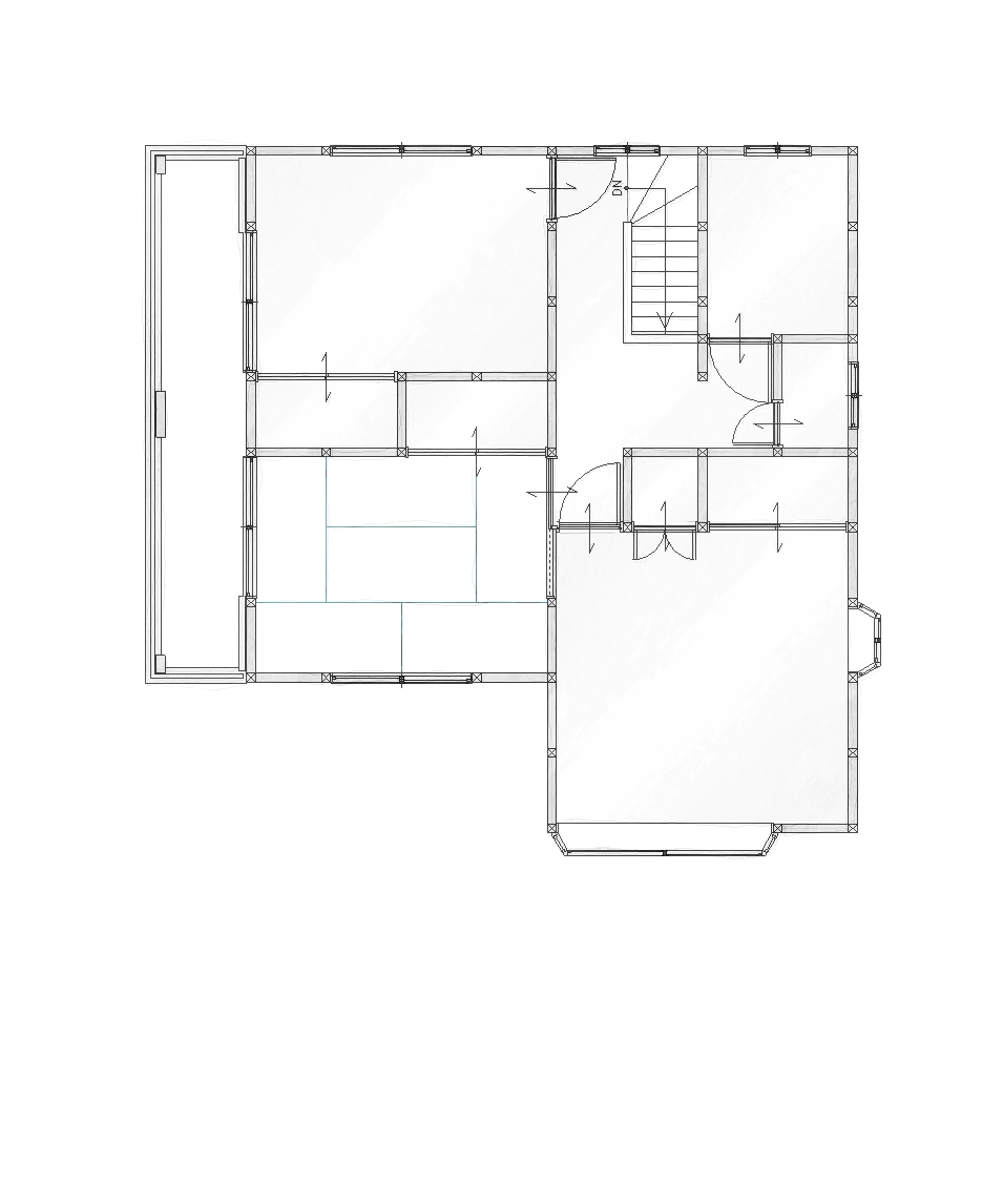
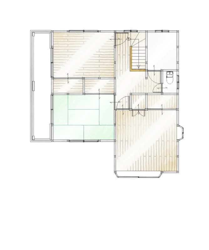
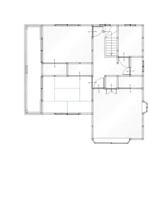
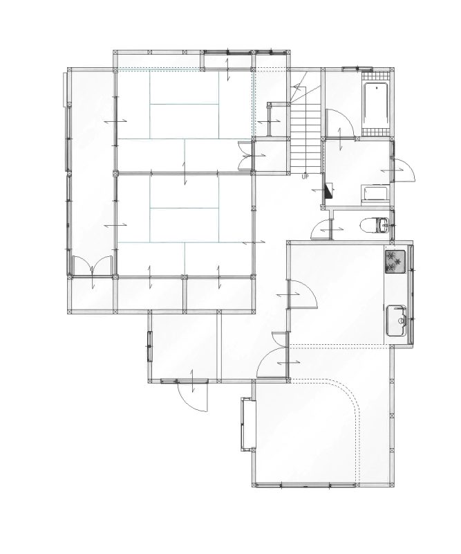
TOPリフォーム実例集【藤井寺市/戸建てリフォーム】古き良きものは残して便利に、快適に! 戸建て 【藤井寺市/戸建てリフォーム】古き良きものは残して便利に、快適に! 次前 ROOM PLAN1FBEFORE1FAFTER2FBEFORE2FAFTER DATA 所在地 藤井寺市 構造 木造 築年数 37年 リフォーム面積 59.6㎡ 工期 2ヶ月 リフォーム費用 695万円 リフォーム部位 LDK・水まわり・内装・外壁塗装 BEFORE COMMENT藤井寺市/戸建てリフォーム 20年前にキッチンまわりを少しリフォームした以外は、新築当時のまま築 37 年になったN様邸。 物置になっていた和室2 間は畳を新調し、欄間や建具を磨き、壁を塗り替えて再生。もうひとつのリビングのような空間になりました。また、キッチンやお風呂、トイレも最新設備に入れ替え。キッチンは対面式にしたかったのですが、壁付けの方が広く使えるのでそのまま取替。以前はタイルだったお風呂はユニットバスにして暖かくなりました。洗面室やトイレのタイルはレトロな雰囲気が気に入っているのでそのまま活かし、お手入れしやすく機能性が高い設備に入れ替えました。リビングも天井の設えが気に入っているので大幅に変えず、クロスと床を貼替えました。良いところやお気に入りのところは残しながらリフレッシュした N 様邸。リフォームの満足度は 100 %!と、ご家族全員にご満足いただきました。 お客様の声を見る STAFF担当スタッフ 樫田 -kashida- READ MORE 若野 -wakano- READ MORE KEYWORDS壁紙戸建てキッチン500〜800万50㎡以上〜70㎡未満洗面ふたり暮らしバリアフリー築25年以上〜築50年未満浴室トイレ趣味シニアクラシックLDK和室和スタイル暮らしやすい・住みやすい癒し・くつろぎ内装外壁 その他のリフォーム実例集【大阪市/マンションリフォーム】個室もしっかり、LDKはのびやかに。角部屋を最大限に活かす住まい大阪市 Y様邸【大阪市/マンションリフォーム】「夫婦それぞれの暮らし方」60歳からの全面リフォーム大阪市 U様邸【大阪市/マンションリフォーム】暮らしやすさと心地よさを両立したジャパンディ空間T様邸【八尾市/戸建てリフォーム】定年を迎えて向き合った「これからの住まい」T様邸 リフォーム実例集一覧へ戻る 無料お見積もりはこちら
戸建て 【藤井寺市/戸建てリフォーム】古き良きものは残して便利に、快適に! 次前 ROOM PLAN1FBEFORE1FAFTER2FBEFORE2FAFTER DATA 所在地 藤井寺市 構造 木造 築年数 37年 リフォーム面積 59.6㎡ 工期 2ヶ月 リフォーム費用 695万円 リフォーム部位 LDK・水まわり・内装・外壁塗装 BEFORE COMMENT藤井寺市/戸建てリフォーム 20年前にキッチンまわりを少しリフォームした以外は、新築当時のまま築 37 年になったN様邸。 物置になっていた和室2 間は畳を新調し、欄間や建具を磨き、壁を塗り替えて再生。もうひとつのリビングのような空間になりました。また、キッチンやお風呂、トイレも最新設備に入れ替え。キッチンは対面式にしたかったのですが、壁付けの方が広く使えるのでそのまま取替。以前はタイルだったお風呂はユニットバスにして暖かくなりました。洗面室やトイレのタイルはレトロな雰囲気が気に入っているのでそのまま活かし、お手入れしやすく機能性が高い設備に入れ替えました。リビングも天井の設えが気に入っているので大幅に変えず、クロスと床を貼替えました。良いところやお気に入りのところは残しながらリフレッシュした N 様邸。リフォームの満足度は 100 %!と、ご家族全員にご満足いただきました。 お客様の声を見る STAFF担当スタッフ 樫田 -kashida- READ MORE 若野 -wakano- READ MORE KEYWORDS壁紙戸建てキッチン500〜800万50㎡以上〜70㎡未満洗面ふたり暮らしバリアフリー築25年以上〜築50年未満浴室トイレ趣味シニアクラシックLDK和室和スタイル暮らしやすい・住みやすい癒し・くつろぎ内装外壁 その他のリフォーム実例集【大阪市/マンションリフォーム】個室もしっかり、LDKはのびやかに。角部屋を最大限に活かす住まい大阪市 Y様邸【大阪市/マンションリフォーム】「夫婦それぞれの暮らし方」60歳からの全面リフォーム大阪市 U様邸【大阪市/マンションリフォーム】暮らしやすさと心地よさを両立したジャパンディ空間T様邸【八尾市/戸建てリフォーム】定年を迎えて向き合った「これからの住まい」T様邸 リフォーム実例集一覧へ戻る