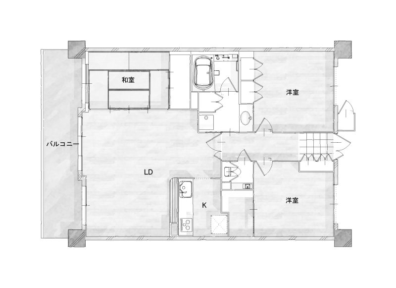
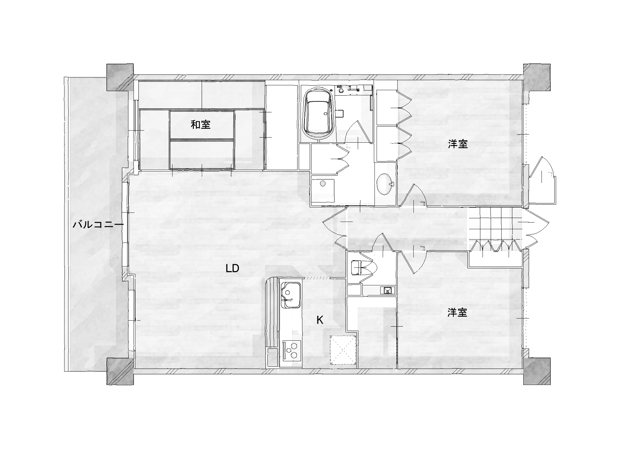
TOPリフォーム実例集【大阪市/マンションリフォーム】ストレスフリーで過ごせるこだわり収納のある家 マンション 【大阪市/マンションリフォーム】ストレスフリーで過ごせるこだわり収納のある家 次前 ROOM PLANBEFOREAFTER DATA 所在地 大阪市 構造 RC造 築年数 13年 リフォーム面積 90.76㎡ 工期 2ヶ月 リフォーム費用 650万円 リフォーム部位 全面改装 BEFORE COMMENT大阪市/マンションリフォーム 中古マンションをご購入されたN様。「家族5人で過ごすリビングを少しでも広く取りたい」と、キッチンの向きを替えオープンにし、収納にもこだわりました。ペニンシュラ型にしたキッチンは、オープンながら家電収納を引戸で隠すことですっきりと整った印象になっています。さらにキッチンの奥にはパントリーも。デザインは白を基調にすることでより広々と感じられるLDKとなりました。玄関はスペースを広く取り、一画をシューズクロークとして活用。家族分の靴や傘などをしっかりと納めることができます。玄関入ってすぐにはファミリークローゼット。洗濯した物をまとめてこちらに収納することができ、家事動線もラクラク。様々な荷物を収納できるので、リビングや個室の生活スペースはいつもすっきりと過ごすことができます。適材適所のこだわり収納でストレスフリーにお過ごしいただけます。 STAFF担当スタッフ 田中 -tanaka- READ MORE 明石 -akashi- READ MORE KEYWORDSキッチン500〜800万築10年以上〜築25年未満マンション洗面シンプル70㎡以上〜100㎡未満ファミリートイレ子育て廊下・階段ホテルライクLDK洋室収納玄関 その他のリフォーム実例集【豊中市/戸建てリフォーム】毎日をもっと心地よく、自分達らしい住まいを豊中市I様邸【大阪市/マンションリフォーム】個室もしっかり、LDKはのびやかに。角部屋を最大限に活かす住まい大阪市 Y様邸【大阪市/マンションリフォーム】「夫婦それぞれの暮らし方」60歳からの全面リフォーム大阪市 U様邸【大阪市/マンションリフォーム】暮らしやすさと心地よさを両立したジャパンディ空間T様邸 リフォーム実例集一覧へ戻る 無料お見積もりはこちら
マンション 【大阪市/マンションリフォーム】ストレスフリーで過ごせるこだわり収納のある家 次前 ROOM PLANBEFOREAFTER DATA 所在地 大阪市 構造 RC造 築年数 13年 リフォーム面積 90.76㎡ 工期 2ヶ月 リフォーム費用 650万円 リフォーム部位 全面改装 BEFORE COMMENT大阪市/マンションリフォーム 中古マンションをご購入されたN様。「家族5人で過ごすリビングを少しでも広く取りたい」と、キッチンの向きを替えオープンにし、収納にもこだわりました。ペニンシュラ型にしたキッチンは、オープンながら家電収納を引戸で隠すことですっきりと整った印象になっています。さらにキッチンの奥にはパントリーも。デザインは白を基調にすることでより広々と感じられるLDKとなりました。玄関はスペースを広く取り、一画をシューズクロークとして活用。家族分の靴や傘などをしっかりと納めることができます。玄関入ってすぐにはファミリークローゼット。洗濯した物をまとめてこちらに収納することができ、家事動線もラクラク。様々な荷物を収納できるので、リビングや個室の生活スペースはいつもすっきりと過ごすことができます。適材適所のこだわり収納でストレスフリーにお過ごしいただけます。 STAFF担当スタッフ 田中 -tanaka- READ MORE 明石 -akashi- READ MORE KEYWORDSキッチン500〜800万築10年以上〜築25年未満マンション洗面シンプル70㎡以上〜100㎡未満ファミリートイレ子育て廊下・階段ホテルライクLDK洋室収納玄関 その他のリフォーム実例集【豊中市/戸建てリフォーム】毎日をもっと心地よく、自分達らしい住まいを豊中市I様邸【大阪市/マンションリフォーム】個室もしっかり、LDKはのびやかに。角部屋を最大限に活かす住まい大阪市 Y様邸【大阪市/マンションリフォーム】「夫婦それぞれの暮らし方」60歳からの全面リフォーム大阪市 U様邸【大阪市/マンションリフォーム】暮らしやすさと心地よさを両立したジャパンディ空間T様邸 リフォーム実例集一覧へ戻る