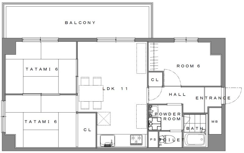
TOPリフォーム実例集【大阪府/マンションリフォーム】ゆるく繋がる2人暮らしの動線 マンション 【大阪府/マンションリフォーム】ゆるく繋がる2人暮らしの動線 次前 ROOM PLANBEFOREAFTER DATA 所在地 大阪市 構造 SRC 築年数 45年 リフォーム面積 57㎡ 工期 45日 リフォーム費用 700万円 リフォーム部位 全面 BEFORE COMMENT大阪府/マンションリフォーム 窓際の湿気で長年カビと壁から伝わる冷気に悩まされていたU様邸。外壁に面している壁と床に断熱材を入れ、窓にはインナーサッシを取付することで、結露対策・断熱・防音効果が期待できる快適リフォームとなりました。 キッチンは元々壁付でしたが対面式へと変更。冷蔵庫や食器棚・家電カウンターをⅠ列にまとめることで動線がよくなり、使いやすくなって料理をするのが楽しみな空間に仕上がりました。テレビを見たり、家族と顔を見ながら会話したり、以前とは違う空間となりU様にも喜んでいただきました。 お風呂と洗面は少しずつサイズアップ、広々と使えるようにしています。トイレ入口にはコンパクトな折戸を取付しました。 また水廻りの横にWICをつくることで、家事の時短にもつながっています。 お部屋の各エリアでの過ごし方を1つ1つ確認して、3LDKを1LDK+WIL+SICにすることで、より快適で機能的な空間へと生まれかわりました。 KEYWORDS断熱キッチンマンション500〜800万洗面50㎡以上〜70㎡未満ふたり暮らしシンプル築25年以上〜築50年未満浴室トイレモダン廊下窓・室内窓・ドアLDK洋室暮らしやすい・住みやすい収納癒し・くつろぎ玄関機能的内装間取り変更 その他のリフォーム実例集【大阪市/マンションリフォーム】個室もしっかり、LDKはのびやかに。角部屋を最大限に活かす住まい大阪市 Y様邸【大阪市/マンションリフォーム】「夫婦それぞれの暮らし方」60歳からの全面リフォーム大阪市 U様邸【大阪市/マンションリフォーム】暮らしやすさと心地よさを両立したジャパンディ空間T様邸【八尾市/戸建てリフォーム】定年を迎えて向き合った「これからの住まい」T様邸 リフォーム実例集一覧へ戻る 無料お見積もりはこちら
マンション 【大阪府/マンションリフォーム】ゆるく繋がる2人暮らしの動線 次前 ROOM PLANBEFOREAFTER DATA 所在地 大阪市 構造 SRC 築年数 45年 リフォーム面積 57㎡ 工期 45日 リフォーム費用 700万円 リフォーム部位 全面 BEFORE COMMENT大阪府/マンションリフォーム 窓際の湿気で長年カビと壁から伝わる冷気に悩まされていたU様邸。外壁に面している壁と床に断熱材を入れ、窓にはインナーサッシを取付することで、結露対策・断熱・防音効果が期待できる快適リフォームとなりました。 キッチンは元々壁付でしたが対面式へと変更。冷蔵庫や食器棚・家電カウンターをⅠ列にまとめることで動線がよくなり、使いやすくなって料理をするのが楽しみな空間に仕上がりました。テレビを見たり、家族と顔を見ながら会話したり、以前とは違う空間となりU様にも喜んでいただきました。 お風呂と洗面は少しずつサイズアップ、広々と使えるようにしています。トイレ入口にはコンパクトな折戸を取付しました。 また水廻りの横にWICをつくることで、家事の時短にもつながっています。 お部屋の各エリアでの過ごし方を1つ1つ確認して、3LDKを1LDK+WIL+SICにすることで、より快適で機能的な空間へと生まれかわりました。 KEYWORDS断熱キッチンマンション500〜800万洗面50㎡以上〜70㎡未満ふたり暮らしシンプル築25年以上〜築50年未満浴室トイレモダン廊下窓・室内窓・ドアLDK洋室暮らしやすい・住みやすい収納癒し・くつろぎ玄関機能的内装間取り変更 その他のリフォーム実例集【大阪市/マンションリフォーム】個室もしっかり、LDKはのびやかに。角部屋を最大限に活かす住まい大阪市 Y様邸【大阪市/マンションリフォーム】「夫婦それぞれの暮らし方」60歳からの全面リフォーム大阪市 U様邸【大阪市/マンションリフォーム】暮らしやすさと心地よさを両立したジャパンディ空間T様邸【八尾市/戸建てリフォーム】定年を迎えて向き合った「これからの住まい」T様邸 リフォーム実例集一覧へ戻る