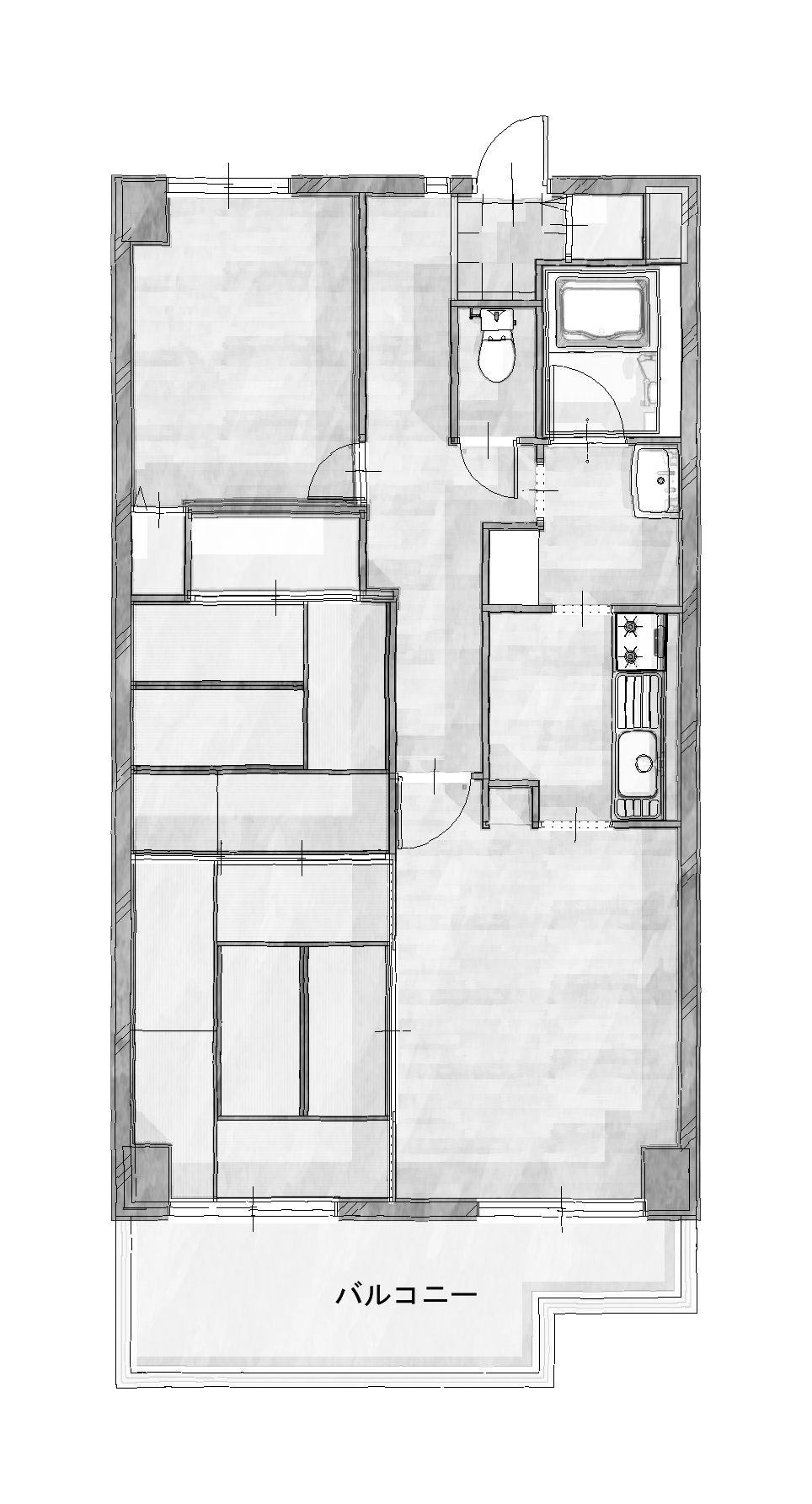
TOPリフォーム実例集【大阪市/マンションリフォーム】グレーをアクセントに木目を活かしたこだわり空間 マンション 【大阪市/マンションリフォーム】グレーをアクセントに木目を活かしたこだわり空間 次前 ROOM PLANBEFOREAFTER DATA 所在地 大阪市 構造 SRC造 築年数 35年 リフォーム面積 60.72㎡ 工期 2ヶ月 リフォーム費用 505万円 リフォーム部位 全面改装 BEFORE COMMENT大阪市/マンションリフォーム ビーバーハウスにて中古マンションを購入されたO様。築35年でこれまでリフォームをされていなかったマンションを間取りからインテリアまで自分たち好みの仕様にリノベーションしました。 間取りはもともとLDの横にあった続きの和室2間をリビングと洋室に変更。広々としたリビングダイニングを実現しました。リビングから続きの洋室は2枚引き戸で仕切り、開けるとさらに広い空間になります。壁で仕切られていたキッチンは間仕切り壁を腰壁に変更することで閉塞感をなくしました。カラーコーディネートにもこだわり、グレーをアクセントに木目を活かした雰囲気のあるおしゃれな空間に仕上がりました。 STAFF担当スタッフ 田中 -tanaka- READ MORE KEYWORDSナチュラルカフェ風キッチン壁紙マンション洗面500〜800万50㎡以上〜70㎡未満ふたり暮らしカジュアル築25年以上〜築50年未満浴室トイレヴィンテージ照明・間接照明廊下北欧スタイル洋室暮らしやすい・住みやすい癒し・くつろぎ玄関機能的内装間取り変更 その他のリフォーム実例集【大阪市/マンションリフォーム】個室もしっかり、LDKはのびやかに。角部屋を最大限に活かす住まい大阪市 Y様邸【大阪市/マンションリフォーム】「夫婦それぞれの暮らし方」60歳からの全面リフォーム大阪市 U様邸【大阪市/マンションリフォーム】暮らしやすさと心地よさを両立したジャパンディ空間T様邸【八尾市/戸建てリフォーム】定年を迎えて向き合った「これからの住まい」T様邸 リフォーム実例集一覧へ戻る 無料お見積もりはこちら
マンション 【大阪市/マンションリフォーム】グレーをアクセントに木目を活かしたこだわり空間 次前 ROOM PLANBEFOREAFTER DATA 所在地 大阪市 構造 SRC造 築年数 35年 リフォーム面積 60.72㎡ 工期 2ヶ月 リフォーム費用 505万円 リフォーム部位 全面改装 BEFORE COMMENT大阪市/マンションリフォーム ビーバーハウスにて中古マンションを購入されたO様。築35年でこれまでリフォームをされていなかったマンションを間取りからインテリアまで自分たち好みの仕様にリノベーションしました。 間取りはもともとLDの横にあった続きの和室2間をリビングと洋室に変更。広々としたリビングダイニングを実現しました。リビングから続きの洋室は2枚引き戸で仕切り、開けるとさらに広い空間になります。壁で仕切られていたキッチンは間仕切り壁を腰壁に変更することで閉塞感をなくしました。カラーコーディネートにもこだわり、グレーをアクセントに木目を活かした雰囲気のあるおしゃれな空間に仕上がりました。 STAFF担当スタッフ 田中 -tanaka- READ MORE KEYWORDSナチュラルカフェ風キッチン壁紙マンション洗面500〜800万50㎡以上〜70㎡未満ふたり暮らしカジュアル築25年以上〜築50年未満浴室トイレヴィンテージ照明・間接照明廊下北欧スタイル洋室暮らしやすい・住みやすい癒し・くつろぎ玄関機能的内装間取り変更 その他のリフォーム実例集【大阪市/マンションリフォーム】個室もしっかり、LDKはのびやかに。角部屋を最大限に活かす住まい大阪市 Y様邸【大阪市/マンションリフォーム】「夫婦それぞれの暮らし方」60歳からの全面リフォーム大阪市 U様邸【大阪市/マンションリフォーム】暮らしやすさと心地よさを両立したジャパンディ空間T様邸【八尾市/戸建てリフォーム】定年を迎えて向き合った「これからの住まい」T様邸 リフォーム実例集一覧へ戻る