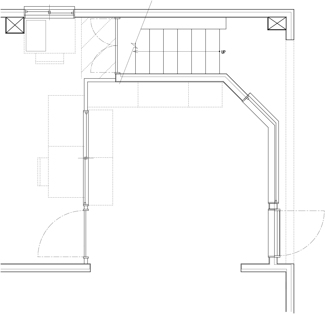
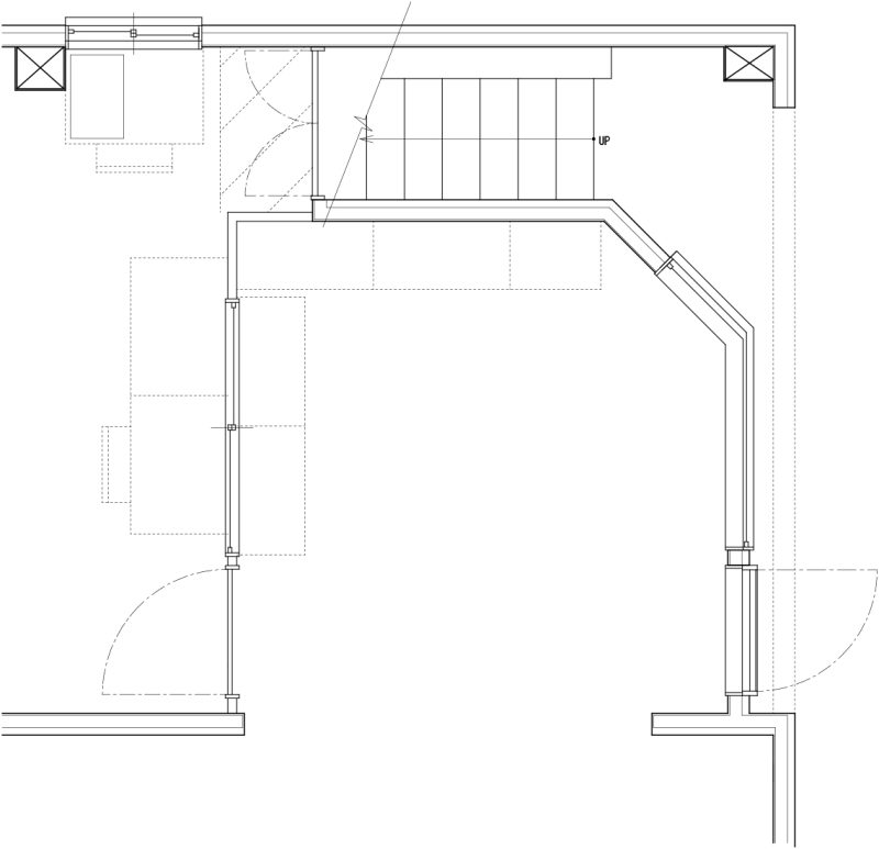
TOPリフォーム実例集【大阪市/オフィスリフォーム】男前インテリア×オフィス 店舗・オフィス 【大阪市/オフィスリフォーム】男前インテリア×オフィス 次前 ROOM PLAN1FBEFORE1FAFTER DATA 所在地 大阪市 構造 鉄骨造 築年数 33年 リフォーム面積 10㎡ 工期 1ヶ月 リフォーム費用 300万円 リフォーム部位 事務所倉庫・内装・収納 BEFORE COMMENT大阪市/オフィスリフォーム 事務所の一部を倉庫として使用するために改装をご希望されました。 ・倉庫を通って事務所へ入る。来客も通るので雰囲気もこだわりたい ・工場が併設されているため、インテリアもマッチさせたい この2点がご要望でした。 事務所の正面に受付を兼ねた大きな窓を設置、断熱もできるようにYKK APのプラマードUをご提案しました。 ドアハンドルと同じシルバー色で、あえて武骨な雰囲気にし洗練されたガレージスタイルへ。 大きな窓とゆとりをもたせた倉庫スペースは来客時にも窮屈な印象を与えません。 コンクリート調のクロス、モルタル調の床材、オーダーメードの収納棚の黒色で全体を引き締め、男の隠れ家スタイルで毎日がわくわくしそうな空間の完成です! KEYWORDS500万未満50㎡未満築25年以上〜築50年未満店舗・オフィス窓・室内窓・ドアヴィンテージオリジナル家具収納その他ワークスペース その他のリフォーム実例集【豊中市/戸建てリフォーム】毎日をもっと心地よく、自分達らしい住まいを豊中市I様邸【大阪市/マンションリフォーム】個室もしっかり、LDKはのびやかに。角部屋を最大限に活かす住まい大阪市 Y様邸【大阪市/マンションリフォーム】「夫婦それぞれの暮らし方」60歳からの全面リフォーム大阪市 U様邸【大阪市/マンションリフォーム】暮らしやすさと心地よさを両立したジャパンディ空間T様邸 リフォーム実例集一覧へ戻る 無料お見積もりはこちら
店舗・オフィス 【大阪市/オフィスリフォーム】男前インテリア×オフィス 次前 ROOM PLAN1FBEFORE1FAFTER DATA 所在地 大阪市 構造 鉄骨造 築年数 33年 リフォーム面積 10㎡ 工期 1ヶ月 リフォーム費用 300万円 リフォーム部位 事務所倉庫・内装・収納 BEFORE COMMENT大阪市/オフィスリフォーム 事務所の一部を倉庫として使用するために改装をご希望されました。 ・倉庫を通って事務所へ入る。来客も通るので雰囲気もこだわりたい ・工場が併設されているため、インテリアもマッチさせたい この2点がご要望でした。 事務所の正面に受付を兼ねた大きな窓を設置、断熱もできるようにYKK APのプラマードUをご提案しました。 ドアハンドルと同じシルバー色で、あえて武骨な雰囲気にし洗練されたガレージスタイルへ。 大きな窓とゆとりをもたせた倉庫スペースは来客時にも窮屈な印象を与えません。 コンクリート調のクロス、モルタル調の床材、オーダーメードの収納棚の黒色で全体を引き締め、男の隠れ家スタイルで毎日がわくわくしそうな空間の完成です! KEYWORDS500万未満50㎡未満築25年以上〜築50年未満店舗・オフィス窓・室内窓・ドアヴィンテージオリジナル家具収納その他ワークスペース その他のリフォーム実例集【豊中市/戸建てリフォーム】毎日をもっと心地よく、自分達らしい住まいを豊中市I様邸【大阪市/マンションリフォーム】個室もしっかり、LDKはのびやかに。角部屋を最大限に活かす住まい大阪市 Y様邸【大阪市/マンションリフォーム】「夫婦それぞれの暮らし方」60歳からの全面リフォーム大阪市 U様邸【大阪市/マンションリフォーム】暮らしやすさと心地よさを両立したジャパンディ空間T様邸 リフォーム実例集一覧へ戻る